1. Accueil
  2. Achat
  3. Achat Maison
  4. Achat Maison Seine-Maritime (76)
  5. Achat Maison PETIVILLE (76330)

Maison à vendre 4 pièces - 87 m2 PETIVILLE - 76

Ref : 6945

239 000 €

  • Honoraires charge vendeur
Maison à vendre - 4 pièces - 87 m2 - Petiville - 76 - HAUTE-NORMANDIE
Maison à vendre - 4 pièces - 87 m2 - Petiville - 76 - HAUTE-NORMANDIE
Maison à vendre - 4 pièces - 87 m2 - Petiville - 76 - HAUTE-NORMANDIE
Maison à vendre - 4 pièces - 87 m2 - Petiville - 76 - HAUTE-NORMANDIE
Envoyer un message
Message
Envoyer ce bien à un ami

Description

À vendre à Petiville, un projet de maison neuve clé en main :

Une maison de plain-pied offrant un cadre de vie idéal pour les familles. Avec ses 87 m², elle dispose de trois chambres confortables et d'un espace séjour-cuisine spacieux de près de 43 m². Profitez d'un chauffage individuel et d'une isolation double vitrage alu et PVC pour un confort optimal.

Ce projet est tout inclus à 239 000 euros (frais de notaire inclus), disponible sur des terrains de 525m², 677m² et 678m²

Située à proximité des commodités, vous trouverez des commerces tels que Carrefour Market, Lidl et Auchan à quelques minutes en voiture. Les familles apprécieront la proximité de l'école primaire Antoine de Saint-Exupéry à seulement 6 minutes à pied.

Localisation

Laissez-nous vos coordonnées pour obtenir la localisation

Envoyer

Afficher sur la carte :

Demander la localisation

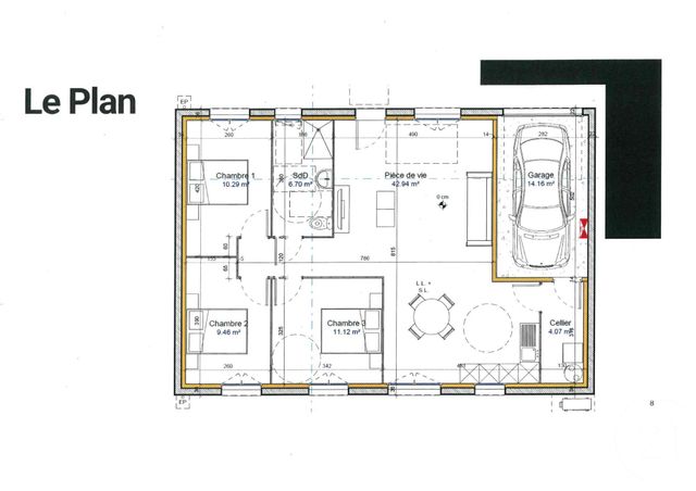
Vue globale

  • Surface totale : 87 m2
  • Surface habitable : 87 m2
  • Surface terrain : 525 m2
  • Nombre de pièces : 4
    • Séjour - Cuisine (42,9 m2)
    • Cellier (4,1 m2)
    • Salle de douche avec WC (6,7 m2)
    • Chambre 1 (10,3 m2)
    • Chambre 2 (9,5 m2)
    • Chambre 3 (11,1 m2)
    • Garage (14,2 m2)

Équipements

Les plus

Accès personnes handicapées

P

Garage

Jardin

Général

  • Garage : 1 place(s)
  • Chauffage : Individuel climatiseur réversible pompe à chaleur
  • Eau chaude : Ballon indépendant
  • Double vitrage, plain pied
  • Isolation : Double vitrage alu + pvc

À savoir

Pour consulter les barèmes d'honoraires de l'agence, cliquez ici

Les informations sur les risques auxquels ce bien est exposé sont disponibles sur le site Géorisques :

Les performances énergétiques

Non soumis au DPE

Ce bien est proposé par l'agence CENTURY 21 Cabinet Mariette

CENTURY 21 Cabinet Mariette

CENTURY 21 Cabinet Mariette

3 rue de la Poterne

76170 LILLEBONNE

0235380338
qualitelis Votre agence est notée
Achat Vente
9,3/10
Location Gestion
9,1/10

Nos offres

Notre agence immobilière à Lillebonne Rue de la Poterne vous propose :

Calculer vos mensualités
de remboursement

Montant du prêt :
Durée du crédit
Taux d'intérêt (hors assurances)

vos mensualités

- € par mois

(Dont -€ d’assurances)

Crédit immobilier simulation
et premiers calculs

vous êtes acquéreur et vendeur,

Vous êtes acquéreur et vendeur, nos agents immobiliers peuvent vous accompagner dans vos projets

Contacter l'agence

Envoyer à un ami

Envoyer

Créer votre alerte

Rappel de vos critères de recherche :

Erreur dans les critères envoyés

Limite d'alertes atteinte

Cette alerte existe déjà

Cette alerte est déjà enregistrée pour cette adresse email. Vous continuerez à recevoir les biens correspondant à vos critères.

Une erreur est survenue

Merci de réessayer ultérieurement.

Votre alerte a été créée

Vous recevrez les biens correspondant à vos critères.

logo vente privées

48h

d’avance sur
le marché

Prenez un temps d’avance sur le marché en profitant gratuitement des Ventes Privées CENTURY 21

Si ce n’est déjà fait, allez compléter le profil de votre compte afin de pouvoir recevoir en avant-première des biens exclusifs, réservés à nos clients pendant les 48 premières heures suivant leur commercialisation.

Nos agences proposent régulièrement des biens comme celui que vous cherchez

Ne ratez pas une opportunité, on vous alerte en priorité !

Êtes-vous actuellement propriétaire de votre bien ?
Créer une alerte
Je souhaite être alerté
Voir les biens correspondants

Envoyer un message :

Envoyer